-RESERVIERT-Doppelhaushälfte in bester Lage von Köln-Lövenich + Sanierungskonzepte zum Festpreis
Details zur Immobilie
Objektbeschreibung
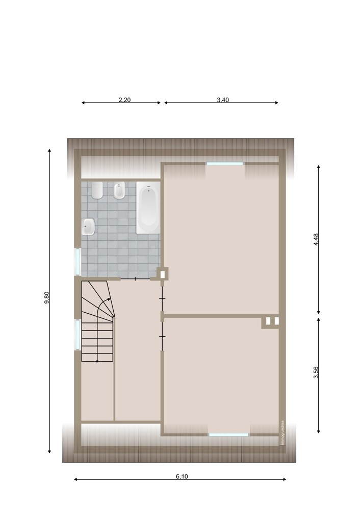
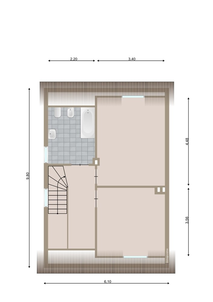
Diese Doppelhaushälfte aus dem Jahr 1937 umfasst im ursprünglichen Zustand rund 104 Quadratmeter Wohnfläche auf einem 355 Quadratmeter großen Grundstück. Hinzu kommt eine Garage. Das Haus liegt in einer der besten und sehr ruhigen Lagen von Köln-Lövenich mit einem nach Südwesten ausgerichteten Garten. In den 1980ern wurden Bäder, Leitungen, Heizkörper und Fenster erneuert, und 1988 wurde ein genehmigter Wintergarten angebaut. Der Öltank ist neu beschichtet und in gutem Zustand. Da die Besitzerin ins Pflegeheim gezogen ist, muss das Haus noch geräumt werden, was sich in der Preisverhandlung widerspiegeln kann. Insgesamt bietet diese Immobilie viel Potenzial in einer erstklassigen Lage.
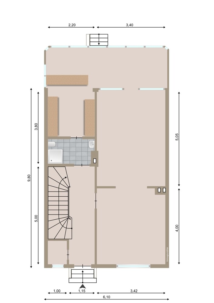
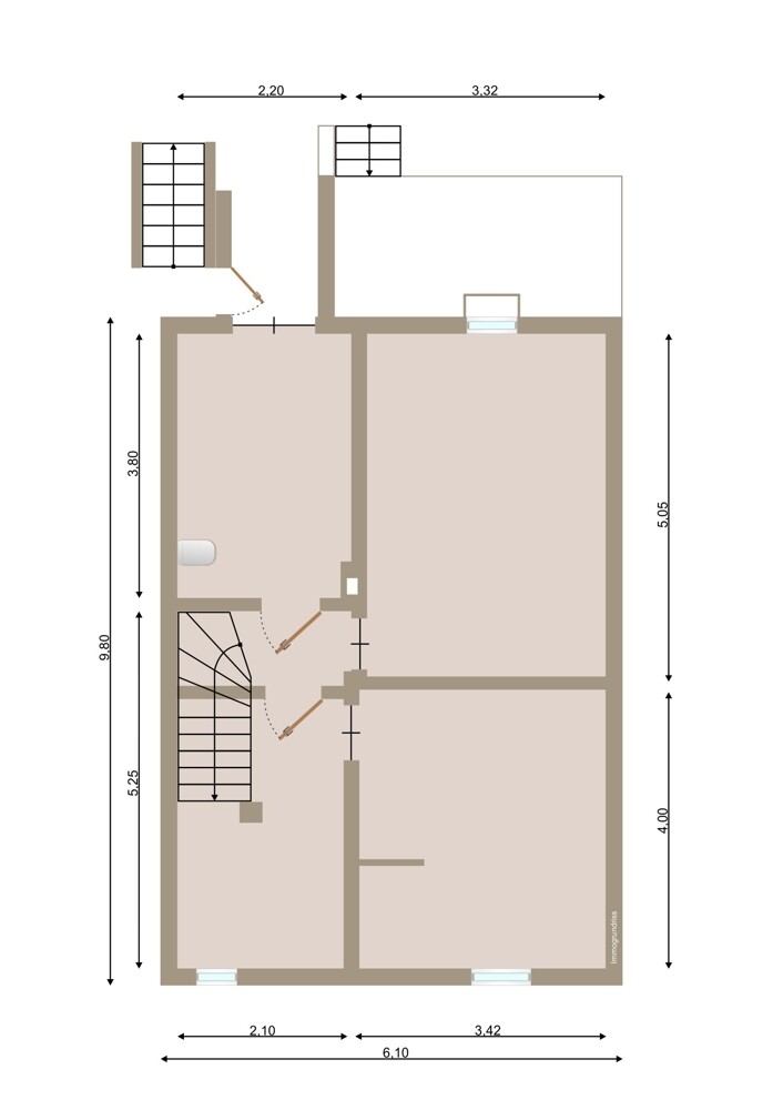
Für Interessenten haben wir mit der Firma Schlaumeier Haus GmbH zwei umfangreiche Sanierungsangebote zusammengestellt die zu einem Komplettpreis angeboten werden.
In der Anlage sind Art und Umfang der Leistungen dargestellt. Flexibel lassen sich Leistungen umstellen, ergänzen oder streichen.
Auf Anfrage senden wir die ausführliche Baubeschreibung der Fa. Schlaumeier Haus GmbH beider Angebote zu.
Durch die förderfähigen Gewerke wird hierdurch auch sicher ein attraktives Angebot Ihrer Bank zusammengestellt.
Ausstattung
offene Küche
1 Bad mit Badewanne WC u. Bidet
1 Bad mit Dusche u. WC
1 WC im Keller-Waschküche
2 Schlafzimmer
Wintergarten mit elektr. Dachfenstern
elektr.Verschattungsrollos im Wintergarten
elektr.Markise
Dachboden gedämmt und rudimentär ausgebaut
Glasfaseranschluss
Garage
Haupthaus ca. 104 qm mit Wintergarten
Lage
Das Haus liegt in zentraler ruhiger Lage von Köln Lövenich. Kindergärten, Schulen, Ärzte und Einkaufsmöglichkeiten sind in unmittelbarer Nähe.
Die öffentlicnen Verkehrsmittel sind fußläufig erreichbar. Die Auffahrt zum Autobahnkreuz Köln West ist ebenfalls schnell zu erreichen.
Sonstige Angaben
Dieses Kaufangebot wurde auf Grundlage der Angaben des Eigentümers erstellt. Eine Gewähr für Vollständigkeit und Richtigkeit der Angaben kann nicht übernommen werden. Änderungen, Irrtum und Zwischenverkauf bleiben vorbehalten.
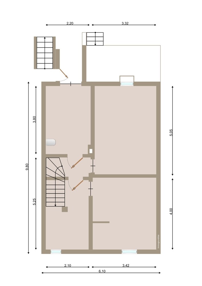
Die Grundrisszeichnungen dienen ausschließlich der Veranschaulichung der Raumaufteilung; für Maßangaben, Flächen oder Quadratmeterzahlen wird keine Haftung übernommen.
Der guten Ordnung halber weisen wir darauf hin, dass beim Abschluss eines Kaufvertrags eine Maklerprovision in Höhe von 3,57 % inkl. gesetzlicher Mehrwertsteuer anfällt und jeweils vom Käufer und Verkäufer zu tragen ist. Fällig nach notarieller Beurkundung des Kaufvertrages.

